АВТОРСКИЙ TELEGRAM КАНАЛ СЕРГЕЯ ПЯТНИЦКОГО
АВТОРСКИЙ TELEGRAM КАНАЛ СЕРГЕЯ ПЯТНИЦКОГО
Founder & Director at RedWall
Сергей Пятницкий

Новостройки Одессы: старт продаж в марте 2020. Центр, Малиновский район, Крыжановка, Авангард

Читать 20 минут
23.03.2020
В начале весны ожидаемо активизировались новостройки Одессы. Старт продаж объявили сразу 5 застройщиков. Кто-то запускает новые проекты, кто-то развивает старые. В любом случае новые старты продаж Одессы стоит изучить. Помним, что на этапе котлована разбирают самые выгодные варианты.

Старт продаж – "Дом на Маланова", центр
(Маланова/Коблевская) от частного застройщика

Расположение ЖК на Маланова на карте Одессы
Так будет выглядеть новый дом на Маланова.
Документы объекта в норме. Есть разрешение на строительство. Так как это реконструкция, документы на землю не требуются. Сроки строительства не переносили.

Здание получит такую планировку.
Есть рассрочка на 2 года с удорожанием 10%. Для покупки квартиры от застройщика нужно внести 30% стоимости. Довольно внушительно, особенно с учетом расценок объекта, вы уже видели их выше в табличке. С другой стороны, это элитный жилой комплекс в центре. И он, как говорится, того стоит.

Помимо увесистых ценников, проект имеет еще один существенный минус. Как видно по планировкам, в наличии только однокомнатные и двухкомнатные квартиры. Не всякий спрос удовлетворит такое предложение.

А теперь к достоинствам. Первое и самое важное для любого инвестора– это, конечно, репутация застройщика. Она у компании безупречная: на счету ЖК "Андреевский" и "Рождественский". Застройщик строит качественно и соблюдает сроки. Что еще нужно? А вот что.

"Дом на Маланова" радует такими преимуществами.

  1. Классное расположение. Самое сердце Одессы: 10 минут до Дерибасовской и Горсада, еще меньше до Нового Рынка. Если давно мечтали о квартире в историческом центре города, это ваш шанс. Таких вариантов сейчас немного.
  2. Отличная инфраструктура. Все блага цивилизации под рукой. Ну и, конечно, хорошая транспортная развязка, хотя куда ехать, если вы и так уже в центре;) Первые этажи станут коммерческими – значит, под боком появятся еще магазины, салоны и прочие приятности.
  3. Хорошая постройка. Качественные стройматериалы, утепление, современный лифт, индивидуальное отопление.
  4. Официальный жилой статус квартир.

Это хороший объект и для жизни, и для инвестиции – подойдет для долгосрочной аренды. Чтобы узнать подробности по нему, обращайтесь в ReDWall. Мы проконсультируем по этому или другому ЖК Одессы, поможем выбрать хорошую планировку, проверим все нюансы.
Подберем выгодный вариант для инвестиций

Старт продаж – Real Park, Малиновский район (Овидиопольская дорога) от "Стикон"

Расположение ЖК Real Park
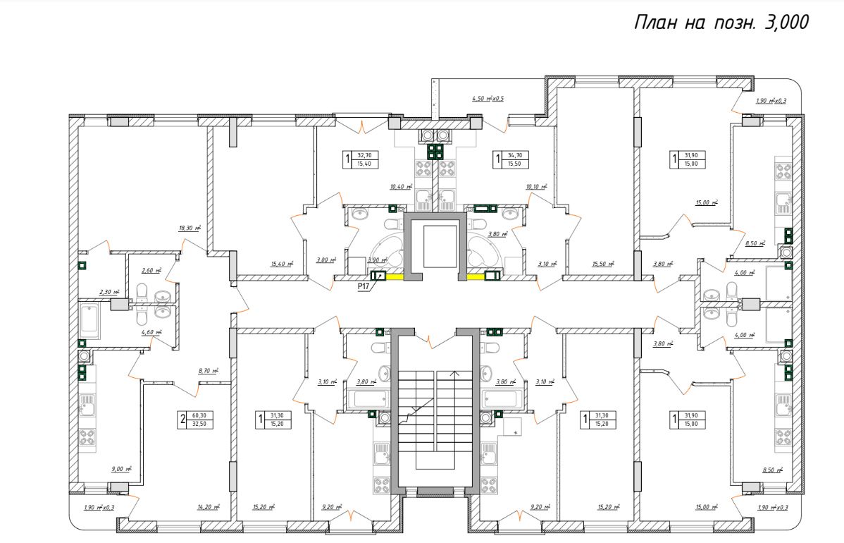
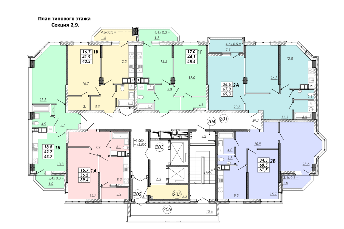
Застройщик объявил старт продаж квартир в секции 2,9.
Вот общий вид ЖК.
У объекта есть все документы: разрешение на работы и права на участок. Целевое назначение совпадает с заявленным. Сроки не переносились.

Комплекс Real Park – это вариант для тех, кто хочет купить квартиру в новострое Одессы по низкой цене. Мало того, что тут адекватная стоимость метра, так еще жилье можно взять в рассрочку. Первый взнос 20% и 12% удорожания на остаток. Есть 1-, 2- и 3-комнатные предложения.
Объект привлекает не только низкой ценой, но и серьезным застройщиком. "Стикон" – это старая надежная компания, которая пережила не один экономический кризис. Она всегда достраивала все свои дома. Если "Стикон" обещает привлекательный зеленый микрорайон со своей инфраструктурой, скорее всего так и будет. Но пока окрестности не слишком привлекательные. Рядом работает только супермаркет "Таврия". Но в ближайшие 5-7 лет, мы уверены, район получит собственный ТЦ, кинотеатр, обрастет супермаркетами и прочими благами цивилизации.

Тут не лучшая транспортная развязка. Зато до центра рукой подать – всего полчаса на автобусе.

Нельзя обойти вниманием такой мощный плюс, как близость парковой зоны Селекционного института. Построить ТРЦ и магазины можно за 2-3 года, а чтобы вырастить зеленый массив потребуется не один десяток лет. И он тут уже есть, значит, дело за малым.

Мы подготовили детальное сравнение ЖК "Риал Парк" с его ближайшим конкурентом – "Акварель 4" от ЗСИГ. Почему сравниваем именно эти 2 новостройки? Они находятся недалеко друг от друга, предлагают квартиры в одном ценовом сегменте, оба дома позициниориуют себя как комфорт-класс. Наши клиенты чаще всего сравнивают их между собой, если рассматривают покупку квартиры в Малиновском районе. В этом видео рассказываем что у них общего и в чем отличие:

Старт продаж – "Аполлон на Карантинной", центр (Карантинная) от СК "Гефест"

Расположение ЖК на карте Одессы
Вот такая красота появится в центре.
Вся документация собрана. Целевое назначение участка верное. Сроки без переносов.
Если вы не успели, когда был старт продаж "Дома на Еврейской" от "Будовы", советуем присмотреться к этому "Аполлону". "Гефест" будет строить свой ЖК прямо напротив.

Проект, прямо скажем, хорош: как планировками, так и расположением. Первые 2 этажа будут коммерческими. Новые магазины, салоны, прочие заведения сделают квартал более современным. Здание появится в пешей доступности от парка Шевченко недалеко от моря.

Единственный минус – цена кусается, как в принципе всегда в центре. Застройщик дает рассрочку до конца строительства, то есть до 2023 года, но первый взнос хочет большой – от 30%.

Старт продаж – "Колумб", Крыжановка
от "Южной строительной группы компаний"

ЖК "Колумб" на карте
Этот застройщик любит удивлять необычной архитектурой.
Есть неплохие планировки. Обратитесь к нам, и мы расскажем о них подробнее.
"Южная строительная группа" – это надежный предсказуемый застройщик, который строит хорошо и, что еще важнее, успешно сдает свои объекты. Мы знаем его по ЖК "Зеленый Мыс" тут же в Крыжановке. Визитной карточкой компании является оригинальная архитектура. У каждого объекта своей неповторимый стиль и характер. Много ли новостроев Одессы может этим похвастаться?

"Колумб" – жилье бизнес-класса: статусное, заметное, с хорошей инфраструктурой. Элегантный фасад выгодно выделяет его среди прочих объектов, а близость моря довершает картину шикарной жизни.

Поэтому цена жилья высоковата для Крыжановки. Тут, а также по соседству в Лесках и Фонтанке можно найти варианты подешевле.

Немного облегчения приносит наличие рассрочки. Условия застройщика такие.
При 100% оплате полагается щедрая скидка 10%.

Стоит обратить внимание на ЖК "Колумб" в том случае, если хотите жить в элитном здании на поселке Котовского, но не рассматриваете вариант частного дома. Расценки сопоставимы со стоимостью постройки коттеджа.

Старт продаж – "Бельгийский дом", Крыжановка
от "Южной строительной"

"Бельгийский дом" на карте
Еще один архитектурный шедевр от того же застройщика.
Визуализация не способна передать всю красоту архитектуры. Чтобы понять, о чем речь, можете посмотреть ЖК "Английский дом", где готово уже 4 дома. Но не стоит ожидать аналогичных решений. Этот застройщик не повторяется.

"Бельгийский дом" построят на берегу озера на пересечении Лесков и Фонтанки. Это будет изящное малоэтажное здание с небольшим числом квартир. Находка для тех, кто устал от городских муравейников и хочет жить в комфорте, с красивым видом из окна, зная соседей в лицо.

К сожалению, ценник у нового ЖК высоковат для района. На Поскоте обычно квартиры стоят дешевле, но это же необычная недвижимость. Застройщик дает рассрочку на 6 месяцев при предоплате 50%. А если внесете 100% сразу, получите скидку 5%.

Нельзя списывать со счетов репутацию застройщика. Строят в Одессе и ее окрестностях многие, но не все делают это хорошо и вовремя. "Южная строительная" входит в число надежных компаний.

Старт продаж – Artville, Авангард
(7 км Овидиопольской дороги) от Zezman

Общий вид на городок Artville с капсульным парком.
Zezman запускает 20-й дом с такими планировками.
Artville – далеко не новый, уже проверенный проект. Это целый городок, который активно разрастается на 7 км Овидиопольской дороги. Здесь могут поселиться те, кого не смущает соседство с рынком.

Застройщик глобально подошел к развитию района. Скоро он построит рядом с комплексом большой ТРЦ. На первых этажах готовых секций уже работает коммерция. Рядом есть небольшой парк. Инфраструктура 7 км потихоньку развивается.

Дом заинтересует тех, кто хочет купить жилье недорого и на комфортных условиях. Застройщик предлагает хорошую рассрочку:
  • беспроцентную на 36 месяцев при первом взносе 35%;
  • суперлегкую под 7% годовых на 60 месяцев при ПВ от 20% .

Есть акция для тех, кто внесет всю сумму сразу. При 100% оплате полагается скидка 8,5%.

Моно взять квартиру с ремонтом, и неплохим. Можете посмотреть в нашем обзоре. Въехал – и живи.
Если вам понравился этот или другой объект, обращайтесь к нам за подробностями. Поможем найти другие стоящие предложения в городе и его окрестностях. Мы в ReDWall знаем, как сделать покупку квартиры в новострое простой, выгодной и даже приятной процедурой. Не верите? Дайте нам шанс убедить вас:)
Подберем для вас подходящие квартиры в новострое — бесплатно и за 3 дня
Понравилась статья?
Расскажите о ней друзьям.
Читайте также: